申请单位:肖情、肖闵文
设计原因:因万达广场发展需要,A3栋-1层(半地下层)临街侧需增加电梯及附属用房。
设计依据:《民用建筑通用规范》GB55031-2022、《民用建筑设计统一标准》GB50352-2019、《建筑防火通用规范》GB55037-2022、《建筑设计防火规范》GB50016—2014(2018年版)、《重庆市大型商业建筑设计防火规范》DBJ 50-054-2013、《重庆市城市规划管理技术规定》等。
设计单位:中机中联工程有限公司
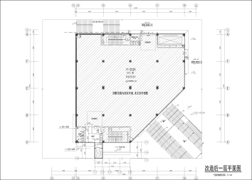
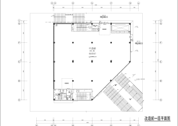
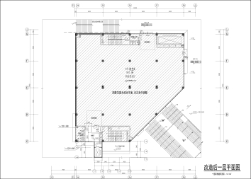
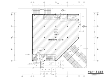
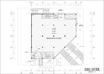
设计内容:A3栋-1层(半地下层)临街侧增加电梯及附属用房,并调整车库出入口。
地块指标:调整后项目总建筑面积255883.09平方米、总计容建筑面积174540.9平方米,调整后总建筑面积增加102.39平方米,总计容建筑面积增加102.39平方米。
公示地点:1.忠县规划和自然资源局 2.北山广场 3.忠州广场 4.忠县政府网 5.项目所在地 6.忠州之家
公示单位:忠县规划和自然资源局
公示时间:2025年3月30日—2025年4月5日
意见反馈:1.若您需对该规划方案发表意见或有其他意见,应在意见反馈期限届满前向忠县规划和自然资源局提交书面意见,同时提供身份证明材料、联系方式。书面意见可当面提交,也可通过邮寄方式提交。邮寄方式提交的,请在信封正面注明“公示反馈意见”字样,提交时间以邮局收件邮戳载明的时间为准。2.若您认为是该规划方案的利害关系人,在提交书面意见时,还应提供该规划方案直接涉及您利益的证明材料。3.意见反馈期限截至公示期满后5个工作日内,规定期限内未反馈意见的,视为放弃权利。4.相关利害关系人可自公示期满之日起5个工作日内,向忠县规划和自然资源局提出书面听证申请,并提交身份证明材料、直接涉及您利益的证明材料。逾期未提出的,视为自动放弃听证权利。
通信地址:忠县忠州街道鸣玉溪大道99号2号楼2211楼忠县规划和自然资源局收联系电话:023-54232895
附件:1.规划总平面图 2.透视效果图 3.主要经济技术指标一览表 4.公示申请
忠县规划和自然资源局
2025年3月27日
1、规划总平面图



2、调整前后透视效果图对比

3、调整前后主要经济技术指标

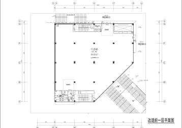
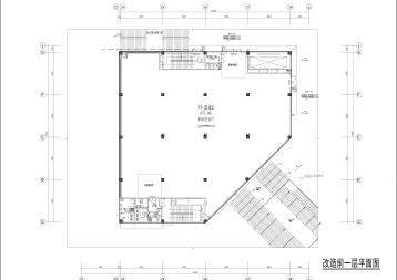
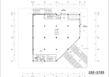
4、调整前后平面对比

![]()
![]()





![]()


![]()
![]()



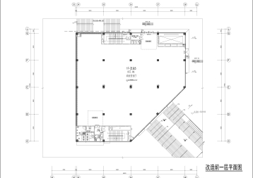
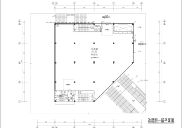
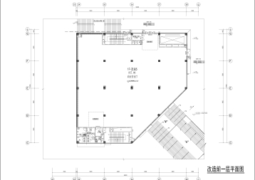
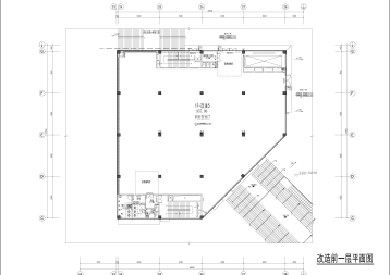
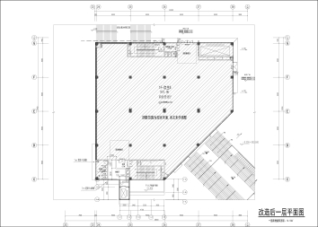
调整前一层平面图
![]()
![]()
![]()



![]()


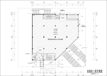
调整后一层平面图

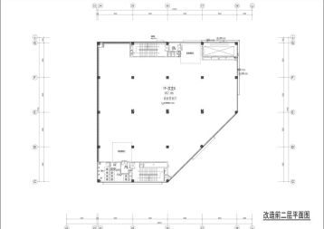
调整前二层平面图
![]()
调整后二层平面图

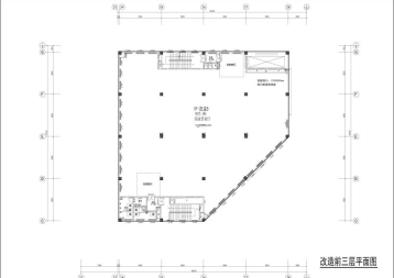
调整前三层平面图
![]()
调整后三层平面图

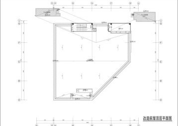
调整前屋顶层平面图
![]()
![]()

![]()
![]()
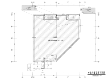
调整后屋顶层平面图
5、公示申请


